Make a call: +86-18927201572
EN
Arabic
English
Malaysia
Indonesia
German
Hebrew
Hindi
Italian
Home
Product
About
Video
News
Contact
Get A Quote
Get A Quote
Main Menu
Home
Product
About
Video
News
Contact
---------- CHANGE LANGUAGES -------
Arabic
English
Malaysia
Indonesia
German
Hebrew
Hindi
Italian
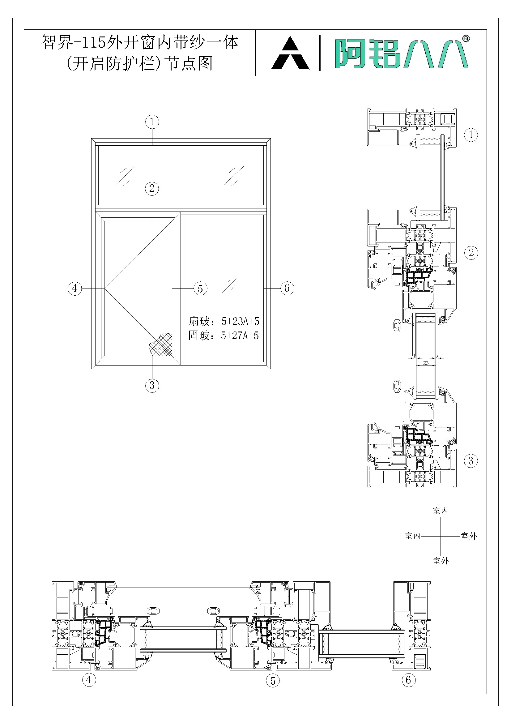
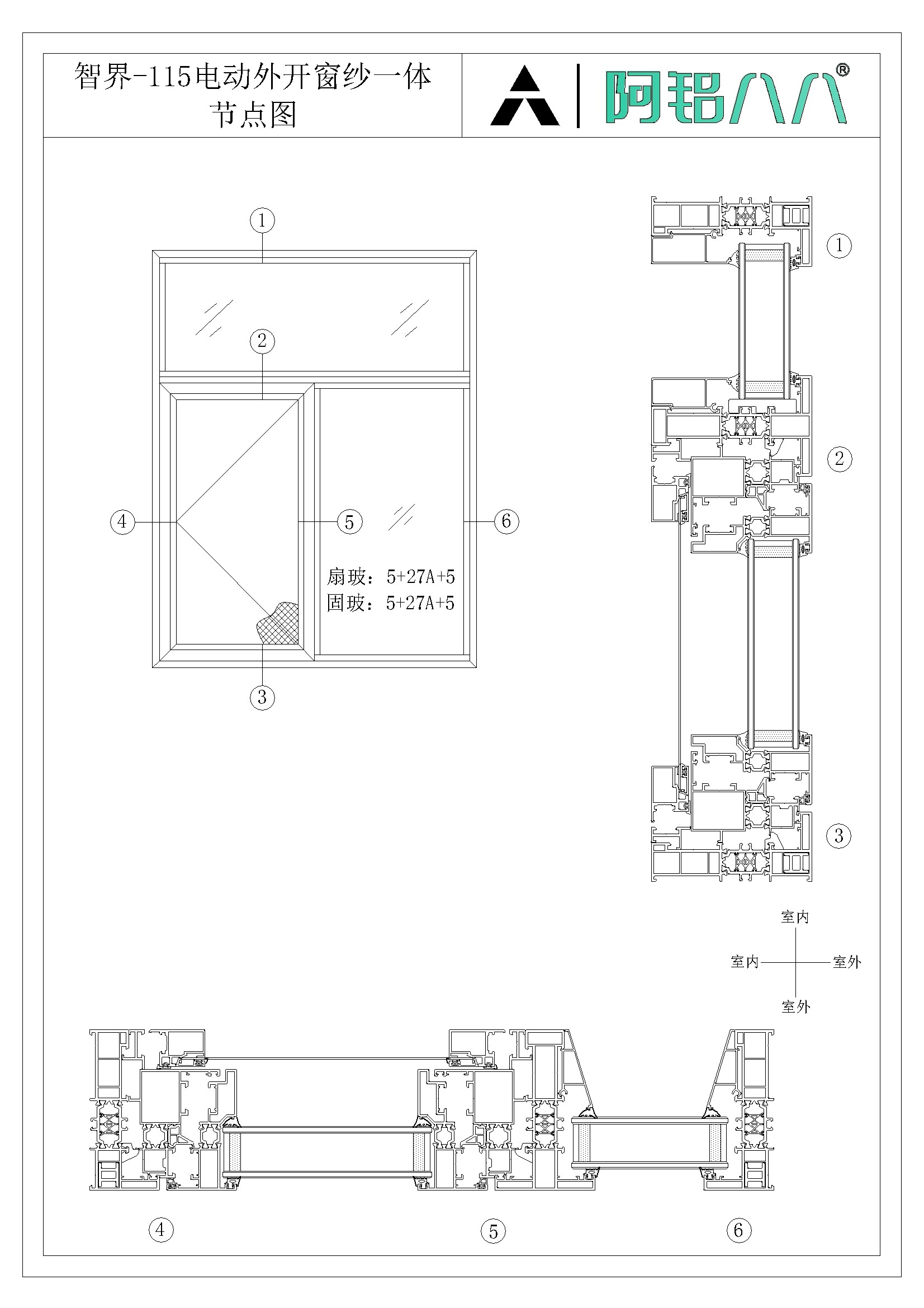
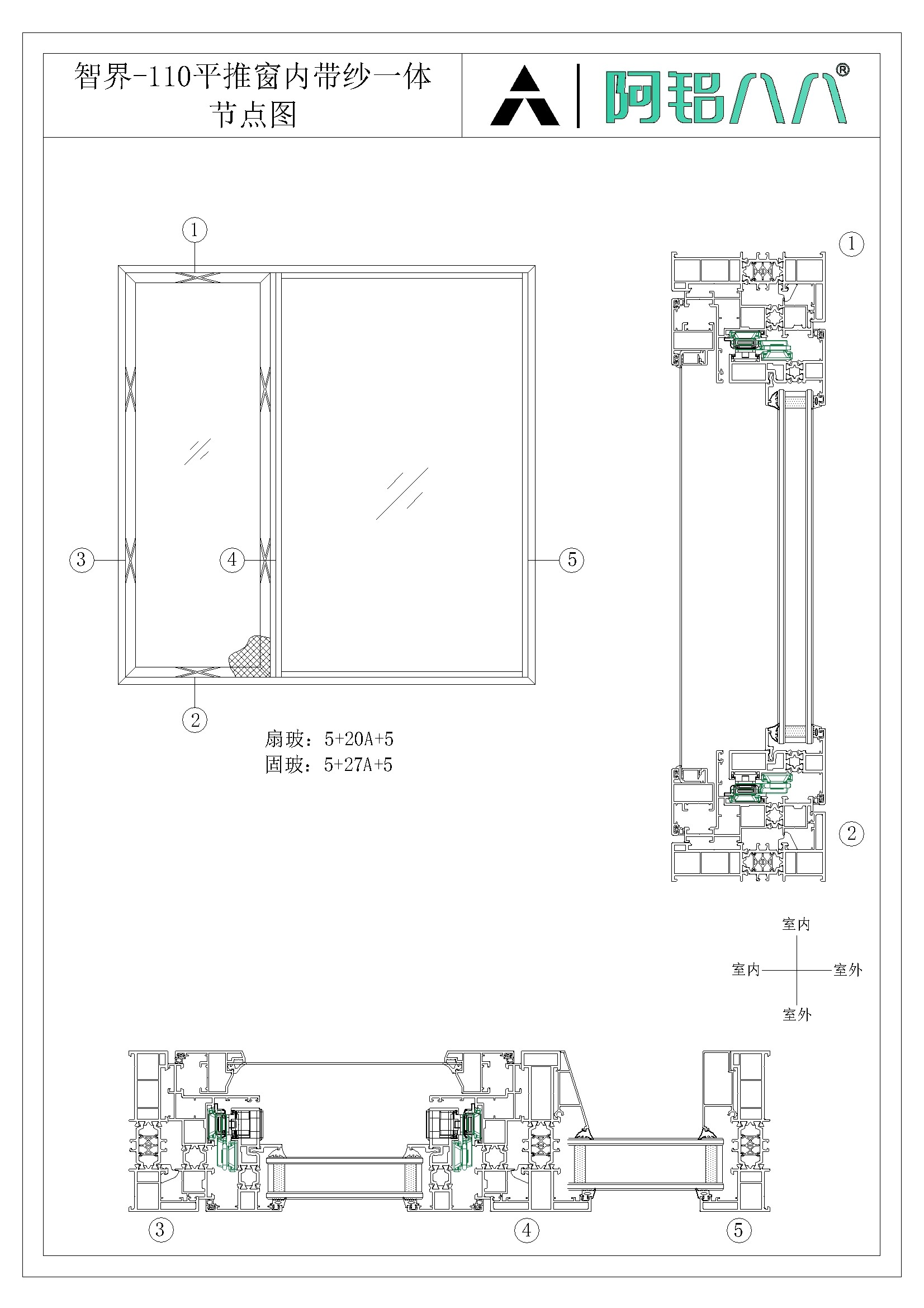
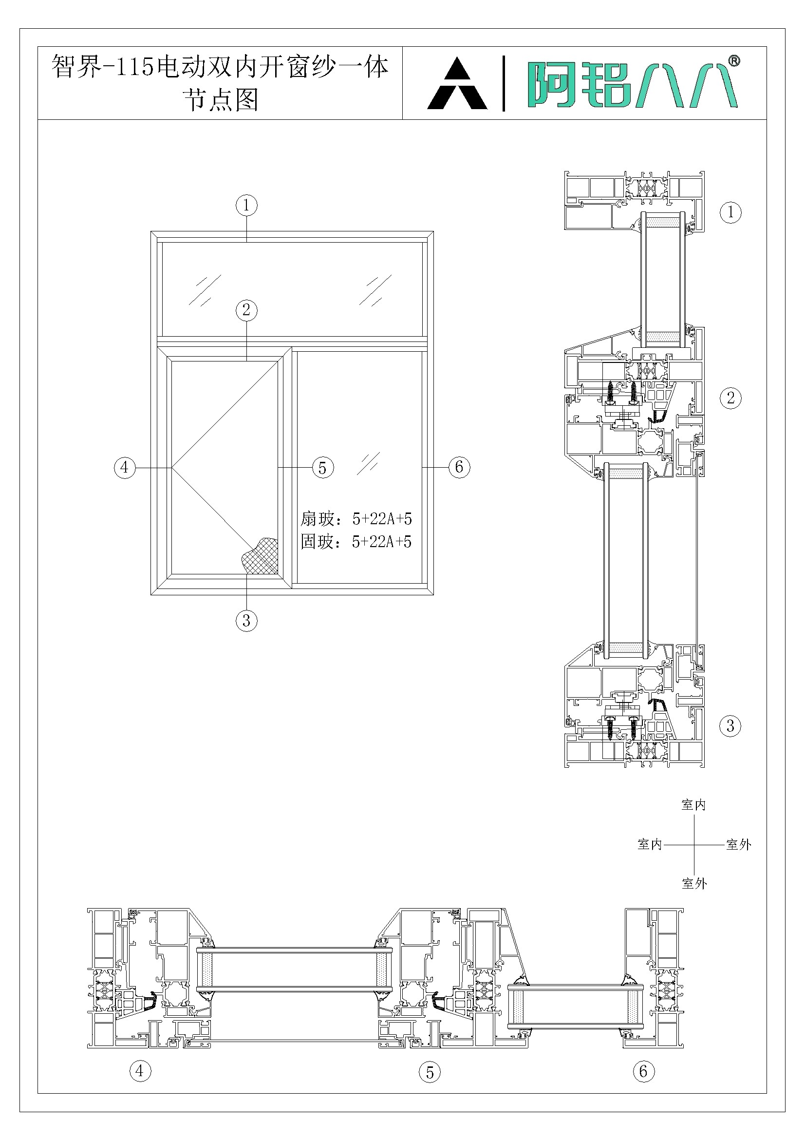
Zhi Jie 115 window screen integrated
related:Zhi Jie 115 window screen integrated